Оборудование дорог, парковок, общественно-массовых мероприятий
info@idn500.ru
8 (800) 200-15-73
Производственная компания «Технология»

Каталог

  • Барьерные ограждения. Блокираторы. Велопарковки
    • Блокиратор парковочного места Передвижные секции;Сигнальные ограждения Пешеходные ограждения
  • Делиниаторы
    • Велоделиниаторы Делиниаторы дорожные композитные Делиниаторы дорожные резиновые Делиниаторы дорожные резиновые;Крепеж. Запчасти. Аксессуары Делиниаторы дорожные резиновые;Светоотражающие материалы
  • ДССИ
    • Для дорожной коммунальной техники Импульсные светодиодные стрелки Прицепы прикрытия (передвижной мобильный комплекс) Световые балки Светодиодные модули (линзы)
  • Газонная решетка (экопаркинг)
  • Кабель-каналы
    • Аксессуары для кабель-каналов;Крепеж. Запчасти. Аксессуары Гибкие кабель-каналы Кабель-каналы двухканальные Кабель-каналы двухканальные;«Лежачие полицейские» (ИДН) — искусственная дорожная неровность Кабель-каналы одноканальные Кабель-каналы пятиканальные Кабель-каналы трехканальные
  • Катафоты и маячки
  • Колесоотбойники
    • Колесоотбойники полимерпесчаные Колесоотбойники резиновые Металлические колесоотбойники Светоотражатели для колесоотбойников;Светоотражающие материалы
  • Крепеж. Запчасти. Аксессуары
    • Для дорожного сигнального оборудования Для дорожных знаков Крепеж Оснастка
  • «Лежачие полицейские» (ИДН) — искусственная дорожная неровность
    • ИДН 1100 композит ИДН-300 ИДН-500 ИДН-900. Усиленное крепление Светоотражатели;Светоотражающие материалы
  • Материалы для дорожной разметки
    • Краска для дорожной разметки Термопластик Трафареты для дорожной разметки Холодный пластик
  • Осветительные установки
    • Осветительные установки надувные Портативные осветительные установки телескопические с литий-ионными аккумуляторами
  • Плитка тротуарная полимерпесчаная
  • Приподнятый пешеходный переход
  • Резиновые напольные покрытия
    • Грязезащитные алюминиевые решетки
  • Съезд с бордюра
    • Съезды с бордюра композитные Съезды с бордюра резиновые
  • Шлагбаумы
    • Автоматические шлагбаумы Для условий СЕВЕРА Ручные шлагбаумы Скоростные автоматические шлагбаумы
  • Сигнальные ограждения
    • Барьеры водоналивные Веха оградительная Веха оградительная;Крепеж. Запчасти. Аксессуары Конусы сигнальные Оградительные сигнальные ленты Ограждение дорожное «Солдатик» Ограждение дорожное «Солдатик»;Светоотражающие материалы Передвижные секции;Барьерные ограждения. Блокираторы. Велопарковки Подставки, утяжелители Предупреждающие знаки и таблички безопасности Светофоры и контроллеры Сетки оградительные Фонари сигнальные, гирлянды Цепь пластиковая
  • Столбики дорожные: гибкие, парковочные, сигнальные
    • Гибкие столбики Парковочные столбики Столбики сигнальные
  • Светофоры и контроллеры
    • Автономные светофоры Мобильные светофоры
  • Тактильная плитка
    • Тактильная плитка бетон Тактильная плитка полимерно-песчаная (композит)
  • Защита стен и углов
    • Аксессуары для угловых демпферов;Светоотражающие материалы Бамперы упорные резиновые Демпферы из вспененного полиэтилена (парковочные стоп-маты) Защита стен Защита углов Защитные ограждения паллетных стеллажей Отбойники металлические Профили для защиты кромок Профили из вспененного полиэтилена
  • Зеркала дорожные
    • Досмотровые зеркала Зеркала дорожные Зеркала сферические для помещений Зеркала сферические дорожные Зеркала сферические из нержавеющей стали Зеркала сферические промышленные Крепеж для дорожных зеркал;Знаки дорожные Крепеж для дорожных зеркал;Крепеж. Запчасти. Аксессуары
  • Знаки дорожные
    • Аксессуары Аксессуары;Крепеж. Запчасти. Аксессуары Временные знаки Дорожные знаки на флуоресцентном фоне Дорожные знаки по ГОСТу Знаки индивидуального проектирования Маски и основы дорожных знаков Светодиодные знаки
0
0

Меню

О компании
  • Готовые объекты
  • Нам доверяют
  • Сертификаты и дипломы
  • Работа у нас
  • Сотрудничество с нами
  • Новости
  • Блог idn500.ru
  • Реквизиты
  • Карта сайта
  • Политика конфиденциальности
Прайс-листы Способы оплаты Возврат средств Как сделать заказ
Монтаж Доставка
Отрасли и сферы применения нашей продукции
  • Промышленная безопасность
  • Дорожное строительство
  • Общественно-массовые мероприятия
  • Зоны проведения дорожных работ
  • Оснащение парковок
  • Оснащение ЭЗС для электромобилей
  • Оснащение автомоек и АЗС
  • Оснащение складов
  • Перегрузочное оборудование
  • Доступная среда
  • Оснащение спортивных объектов
Контакты
  • Бесплатный звонок по России

  • 8 (800) 200-15-73
  • info@idn500.ru
  • Пн-Пт: 9:00 - 18:00 (по Москве)

Помощь покупателю
  • FAQ : Часто задаваемые вопросы
  • ГОСТы - документация

Заказать

Basket 0

Корзина

Технология
Телефоны
+7 000 000-00-00
E-mail
info@idn500.ru
Адрес
150049, г. Ярославль, пр-т Толбухина, д. 17а
Режим работы
Пн - Пт: с 9:00 до 18:00
0
0
0
  • Кабинет
  • 0 Сравнение
  • 0 Избранное
  • 0 Корзина
  • Бренды
  • Акции
  • Услуги
    • Услуги
    • Изготовление резиновых изделий на заказ
      • Изготовление резиновых изделий на заказ
      • Услуги по изготовлению резиновых изделий на заказ по чертежам заказчика
    • Нанесение дорожной разметки, пиктограмм
      • Нанесение дорожной разметки, пиктограмм
      • Демаркировка дорожной разметки
      • Нанесение изображений и пиктограмм
      • Разметка дороги
      • Разметка дорожной краской
      • Разметка пешеходных переходов
      • Разметка термопластиком
      • Разметка холодным пластиком
      • Разметка эпоксидной краской
    • Разметка парковки
      • Разметка парковки
      • Демаркировка машиномест
      • Нанесение стрелок навигации
      • Нумерация машиномест
      • Покраска стен и колонн
      • Разметка машиномест для инвалидов
      • Разметка машиномест по ГОСТу
      • Разметка трафаретных изображений
    • Установка дорожных знаков
      • Установка дорожных знаков
      • Демонтаж дорожных знаков
      • Монтаж стойки дорожного знака
      • Установка дорожного знака в грунт
      • Установка дорожного знака на стойку
      • Установка знаков дорожного движения на придомовой территории
      • Установка потолочного кронштейна под знак
      • Установка стойки дорожного знака в асфальт
      • Установка стойки дорожного знака в бетон
      • Установка указателя (знака) на потолок, на стену
    • Установка защиты стен и углов
      • Установка защиты стен и углов
      • Услуги по вертикальной разметке стен и колонн
      • Установка защиты стен и углов
      • Демонтаж предохраняющих резиновых профилей
      • Монтаж демпфирующих элементов из вспененного полиэтилена
      • Сигнальная разметка колонн, маркировка, защита
    • Установка колесоотбойников
      • Установка колесоотбойников
      • Монтаж делиниаторов
      • Монтаж колесоотбойников резина/композит
      • Демонтаж делиниаторов
      • Демонтаж колесоотбойников из резины или композита
    • Установка лежачих полицейских (ИДН)
      • Установка лежачих полицейских (ИДН)
      • Монтаж ИДН
      • Демонтаж ИДН (лежачего полицейского)
      • Установка дорожного знака на стойку
    • Установка металлических колесоотбойников
      • Установка металлических колесоотбойников
      • Демонтаж металлических колесоотбойников
      • Монтаж металлических колесоотбойников
      • Установка колесоотбойников металлических на отводах
    • Установка парковочного оборудования
      • Установка парковочного оборудования
      • Демонтаж и замена парковочного оборудования
      • Монтаж парковочного оборудования
      • Разметка машиномест
      • Разметка машиномест для инвалидов
      • Установка гибких столбиков
      • Установка парковочных барьеров и блокираторов
    • Установка парковочных столбиков
      • Установка парковочных столбиков
      • Демонтаж парковочных столбиков
      • Монтаж анкерных столбиков
      • Установка бетонируемых парковочных столбиков
      • Установка гибких столбиков
      • Установка парковочных столбиков на анкерах
      • Установка съемных парковочных столбиков
    • Установка пешеходных и барьерных ограждений
      • Установка пешеходных и барьерных ограждений
      • Монтаж пешеходных и барьерных ограждений
      • Установка дорожных катафотов на барьерные ограждения
      • Установка пешеходных и барьерных ограждений в грунт
      • Демонтаж ограждений перильного типа
    • Установка сферических и обзорных зеркал
      • Установка сферических и обзорных зеркал
      • Монтаж сферических и обзорных зеркал
      • Установка стойки обзорного зеркала с бетонированием
      • Установка сферических и обзорных зеркал на стойку дорожного знака
      • Демонтаж сферических обзорных зеркал
    • Установка съездов (заездов) с бордюров
      • Установка съездов (заездов) с бордюров
      • Монтаж съездов (заездов) с бордюров
  • Компания
    • Компания
    • О компании
    • Сотрудники
    • Новости
    • Отзывы
    • Карьера
    • Лицензии
    • Документы
  • Блог
  • Информация
    • Информация
    • Реквизиты
    • Магазины
    • Проекты
      • Проекты
      • Климатическая техника
        • Климатическая техника
        • Поставка и установка бризеров в детском саду
        • Поставка и установка кондиционеров в офисном помещении
      • Мебель
        • Мебель
        • Гостиная в эко-стиле
        • Кухня в стиле модерн
      • Сантехника
        • Сантехника
        • Обустройство санузла в фирменном стиле ресторана
        • Обустройство санузла в частном коттедже
      • Оборудование
        • Оборудование
        • Подбор и поставка оборудования для промышленного предприятия
      • Освещение
        • Освещение
        • Подбор и установка освещения для салона красоты
    • Возможности
      • Возможности
      • Оформление
      • Кнопки
      • Иконки
      • Элементы
  • Контакты
+7 000 000-00-00
  • Телефоны
  • +7 000 000-00-00
  • info@idn500.ru
  • 150049, г. Ярославль, пр-т Толбухина, д. 17а
  • Пн - Пт: с 9:00 до 18:00
Главная
Коллекции
Топ-10 бестселлеров электроники

Топ-10 бестселлеров электроники

Топ-10 бестселлеров электроники
Быстрая доставка Бережно доставляем товары по России за 24 часа
Бонусы за покупки Дарим подарки и скидки до 70% всем покупателям
Доступные цены Работаем напрямую с ведущими производителями
Гарантия качества Соответствуем требованиям и стандартам качества

Электроника и бытовая техника – помощники и верные друзья в повседневной жизни. У нас вы найдете то, что давно искали. Техника не только стильная, но и качественная. Все проверки успешно пройдены. А характеристики соответствуют стандартам.

Топ-10 моделей из нашего интернет-магазина

Сначала популярные
С начала алфавита
С конца алфавита
Сначала непопулярные
Сначала популярные
Сначала дешевые
Сначала дорогие
Сначала недоступные
Сначала доступные
Быстрый просмотр
Столбик гибкий парковочный 750мм с квадратным разборным основанием Столбик гибкий парковочный 750мм с квадратным разборным основанием Столбик гибкий парковочный 750мм с квадратным разборным основанием Столбик гибкий парковочный 750мм с квадратным разборным основанием
1 890 ₽
+#BONUSES# на счет
Столбик гибкий парковочный 750мм с квадратным разборным основанием
0
0
В наличии
Быстрый просмотр
Напольное покрытие "Пазл" (Модульное покрытие "Ласточкин хвост") Напольное покрытие "Пазл" (Модульное покрытие "Ласточкин хвост") Напольное покрытие "Пазл" (Модульное покрытие "Ласточкин хвост") Напольное покрытие "Пазл" (Модульное покрытие "Ласточкин хвост")
1 100 ₽
+#BONUSES# на счет
Напольное покрытие "Пазл" (Модульное покрытие "Ласточкин хвост")
Подпись к товару:
0
0
В наличии
Быстрый просмотр
СР-150-2 концевая часть СР-150-2 концевая часть СР-150-2 концевая часть СР-150-2 концевая часть
3 350 ₽
+#BONUSES# на счет
СР-150-2 концевая часть
0
0
В наличии
Цвет
:
Чёрный
Быстрый просмотр
Столбик парковочный гибкий 450 мм ТПЭ (OSCAR) Столбик парковочный гибкий 450 мм ТПЭ (OSCAR) Столбик парковочный гибкий 450 мм ТПЭ (OSCAR) Столбик парковочный гибкий 450 мм ТПЭ (OSCAR)
650 ₽
+#BONUSES# на счет
Столбик парковочный гибкий 450 мм ТПЭ (OSCAR)
0
0
В наличии
Цвет
:
Матовый оранжевый
Быстрый просмотр
Анкерный болт 10х150мм Анкерный болт 10х150мм
61 ₽
+#BONUSES# на счет
Анкерный болт 10х150мм
0
0
В наличии
Быстрый просмотр
Анкерный болт 10х130мм с гайкой Анкерный болт 10х130мм с гайкой
64 ₽
+#BONUSES# на счет
Анкерный болт 10х130мм с гайкой
0
0
В наличии
Быстрый просмотр
Бур V PLUS 2-cutting (12x100/160 мм; SDS-plus) D.BOR 2439 Бур V PLUS 2-cutting (12x100/160 мм; SDS-plus) D.BOR 2439 Бур V PLUS 2-cutting (12x100/160 мм; SDS-plus) D.BOR 2439 Бур V PLUS 2-cutting (12x100/160 мм; SDS-plus) D.BOR 2439
440 ₽
+#BONUSES# на счет
Бур V PLUS 2-cutting (12x100/160 мм; SDS-plus) D.BOR 2439
0
0
В наличии
Быстрый просмотр
Бур V PLUS 2-cutting (10x100/160 мм; SDS-plus) D.BOR 2428 Бур V PLUS 2-cutting (10x100/160 мм; SDS-plus) D.BOR 2428 Бур V PLUS 2-cutting (10x100/160 мм; SDS-plus) D.BOR 2428 Бур V PLUS 2-cutting (10x100/160 мм; SDS-plus) D.BOR 2428
340 ₽
+#BONUSES# на счет
Бур V PLUS 2-cutting (10x100/160 мм; SDS-plus) D.BOR 2428
0
0
В наличии
Быстрый просмотр
Дюбель-гвоздь 6*40 с потайной манжетой Дюбель-гвоздь 6*40 с потайной манжетой
7 ₽
+#BONUSES# на счет
Дюбель-гвоздь 6*40 с потайной манжетой
0
0
В наличии
Размер
:
9х40
Быстрый просмотр
Анкерный болт 20х200мм Анкерный болт 20х200мм
170 ₽
+#BONUSES# на счет
Анкерный болт 20х200мм
0
0
В наличии
Цвет
:
Латунь
Быстрый просмотр
Анкерный болт 10х120мм Анкерный болт 10х120мм
56 ₽
+#BONUSES# на счет
Анкерный болт 10х120мм
0
0
В наличии
Быстрый просмотр
Заглушка для крепежного отверстия в колесоотбойнике, делиниаторе Заглушка для крепежного отверстия в колесоотбойнике, делиниаторе
30 ₽
+#BONUSES# на счет
Заглушка для крепежного отверстия в колесоотбойнике, делиниаторе
0
0
В наличии
Цвет
:
Чёрный
Быстрый просмотр
Заглушка для отверстия для вехи в делиниаторе Заглушка для отверстия для вехи в делиниаторе
30 ₽
+#BONUSES# на счет
Заглушка для отверстия для вехи в делиниаторе
0
0
В наличии
Цвет
:
Чёрный
Быстрый просмотр
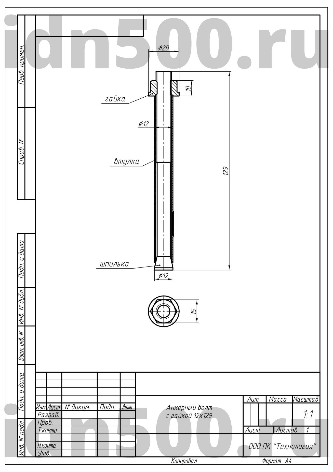
Анкерный болт 12х129мм с гайкой Анкерный болт 12х129мм с гайкой Анкерный болт 12х129мм с гайкой Анкерный болт 12х129мм с гайкой
62 ₽
+#BONUSES# на счет
Анкерный болт 12х129мм с гайкой
0
0
В наличии
Быстрый просмотр
Анкерный болт 12х100мм Анкерный болт 12х100мм
57 ₽
+#BONUSES# на счет
Анкерный болт 12х100мм
0
0
В наличии
Быстрый просмотр
Автономный светофор Т.7.1 двусторонний 200 мм 65 Вт/26Ач Автономный светофор Т.7.1 двусторонний 200 мм 65 Вт/26Ач Автономный светофор Т.7.1 двусторонний 200 мм 65 Вт/26Ач Автономный светофор Т.7.1 двусторонний 200 мм 65 Вт/26Ач
38 372 ₽
+#BONUSES# на счет
Автономный светофор Т.7.1 двусторонний 200 мм 65 Вт/26Ач
0
0
Нет в наличии
Быстрый просмотр
Бампер (буфер) резиновый упорный БР-450 с комплектом креплений Бампер (буфер) резиновый упорный БР-450 с комплектом креплений Бампер (буфер) резиновый упорный БР-450 с комплектом креплений Бампер (буфер) резиновый упорный БР-450 с комплектом креплений
6 919 ₽
+#BONUSES# на счет
Бампер (буфер) резиновый упорный БР-450 с комплектом креплений
0
0
Нет в наличии
Быстрый просмотр
ЛО-250 «Проход запрещен!», красно-белая 75мм/40мкм/250п.м
495 ₽
+#BONUSES# на счет
ЛО-250 «Проход запрещен!», красно-белая 75мм/40мкм/250п.м
0
0
Нет в наличии
Быстрый просмотр
Тактильная плитка диагональный риф 300
192 ₽
+#BONUSES# на счет
Тактильная плитка диагональный риф 300
0
0
Нет в наличии
Цвет
:
Жёлтый
Быстрый просмотр
Башмак противооткатный (упор для колеса) Башмак противооткатный (упор для колеса) Башмак противооткатный (упор для колеса) Башмак противооткатный (упор для колеса)
Башмак противооткатный (упор для колеса)
0
0
Нет в наличии
1 ... 13 14 15 16 17 ... 55

Обустройте дом, окружите себя техникой и упростите решение домашних задач. Чайник греет воду, холодильник поддерживает свежесть продуктов, фотоаппарат делает крутые снимки – а управляете этим всем вы со смартфона. Такое может быть только в 21 веке.

Ловите лучшую подборку этого года: топ-10 бестселлеров электроники и бытовой техники. Выбирайте то, что давно хотели купить. А качество мы вам гарантируем. Если возникнут вопросы, смело пишите в онлайн-чат. Наши менеджеры проконсультируют, помогут с выбором и оформят заказ. Успешных покупок!

Купить электронику в интернет-магазине по выгодным ценам

На нашем сайте вы найдете электронику и бытовую технику под свои нужны. Все товары сертифицированы. Действует гарантия до 5 лет, в зависимости от типа изделия и производителя. Мы ценим качество, поэтому все позиции проходят тщательный отбор. Смело говорим, что товары сделаны на высшем уровне. Будьте уверены, техника вас точно не подведет!

У нас вы найдете:

  • Телевизоры;
  • Игровые приставки;
  • Смартфоны;
  • Аудиотехнику.

Дополнительно

Дополнительный блок для размещения информации о продукции, услугах или любого другого важного контента. Поможет вам ответить на интересующие покупателя вопросы и развеять его сомнения в сотрудничестве. Используйте его по своему усмотрению.

Вы можете убрать блок или вернуть обратно, изменить его заголовок, установив одну галочку в настройках компонента. Очень удобно.

Назад к списку
Каталог
Акции
Бренды
Услуги
Блог
Условия оплаты
Условия доставки
Контакты
Магазины
Гарантия на товар
Документы
Подписаться
на новости и акции
Связаться с нами
+7 000 000-00-00
+7 000 000-00-00
E-mail
info@idn500.ru
Адрес
150049, г. Ярославль, пр-т Толбухина, д. 17а
Режим работы
Пн - Пт: с 9:00 до 18:00
info@idn500.ru
150049, г. Ярославль, пр-т Толбухина, д. 17а
Конфиденциальность
Разработано в
© 2026 Технология

На информационном ресурсе применяются рекомендательные технологии.

Все ресурсы сайта shop.idn500.ru, включая (но не ограничиваясь) текстовую, графическую, фотографическую и видео информацию, структуру, дизайн и оформление страниц, доменное имя, фирменное наименование являются объектами авторского права и прав на интеллектуальную собственность, защищены российским законодательством и международными соглашениями об охране авторских прав. Запрещается любое использование содержания страниц и контента данного сайта на других площадках без предварительного согласия правообладателя. Запрещаются любые иные действия, в результате которых у пользователей Интернета может сложиться впечатление, что представленные материалы не имеют отношения к shop.idn500.ru.

Главная Каталог 0 Корзина 0 Избранные Кабинет 0 Сравнение Акции Контакты Услуги Бренды Отзывы Компания Лицензии Документы Реквизиты Блог Обзоры