Оборудование дорог, парковок, общественно-массовых мероприятий
info@idn500.ru
8 (800) 200-15-73
Производственная компания «Технология»

Каталог

  • Барьерные ограждения. Блокираторы. Велопарковки
    • Блокиратор парковочного места Передвижные секции;Сигнальные ограждения Пешеходные ограждения
  • Делиниаторы
    • Велоделиниаторы Делиниаторы дорожные композитные Делиниаторы дорожные резиновые Делиниаторы дорожные резиновые;Крепеж. Запчасти. Аксессуары Делиниаторы дорожные резиновые;Светоотражающие материалы
  • ДССИ
    • Для дорожной коммунальной техники Импульсные светодиодные стрелки Прицепы прикрытия (передвижной мобильный комплекс) Световые балки Светодиодные модули (линзы)
  • Газонная решетка (экопаркинг)
  • Кабель-каналы
    • Аксессуары для кабель-каналов;Крепеж. Запчасти. Аксессуары Гибкие кабель-каналы Кабель-каналы двухканальные Кабель-каналы двухканальные;«Лежачие полицейские» (ИДН) — искусственная дорожная неровность Кабель-каналы одноканальные Кабель-каналы пятиканальные Кабель-каналы трехканальные
  • Катафоты и маячки
  • Колесоотбойники
    • Колесоотбойники полимерпесчаные Колесоотбойники резиновые Металлические колесоотбойники Светоотражатели для колесоотбойников;Светоотражающие материалы
  • Крепеж. Запчасти. Аксессуары
    • Для дорожного сигнального оборудования Для дорожных знаков Крепеж Оснастка
  • «Лежачие полицейские» (ИДН) — искусственная дорожная неровность
    • ИДН 1100 композит ИДН-300 ИДН-500 ИДН-900. Усиленное крепление Светоотражатели;Светоотражающие материалы
  • Материалы для дорожной разметки
    • Краска для дорожной разметки Термопластик Трафареты для дорожной разметки Холодный пластик
  • Осветительные установки
    • Осветительные установки надувные Портативные осветительные установки телескопические с литий-ионными аккумуляторами
  • Плитка тротуарная полимерпесчаная
  • Приподнятый пешеходный переход
  • Резиновые напольные покрытия
    • Грязезащитные алюминиевые решетки
  • Съезд с бордюра
    • Съезды с бордюра композитные Съезды с бордюра резиновые
  • Шлагбаумы
    • Автоматические шлагбаумы Для условий СЕВЕРА Ручные шлагбаумы Скоростные автоматические шлагбаумы
  • Сигнальные ограждения
    • Барьеры водоналивные Веха оградительная Веха оградительная;Крепеж. Запчасти. Аксессуары Конусы сигнальные Оградительные сигнальные ленты Ограждение дорожное «Солдатик» Ограждение дорожное «Солдатик»;Светоотражающие материалы Передвижные секции;Барьерные ограждения. Блокираторы. Велопарковки Подставки, утяжелители Предупреждающие знаки и таблички безопасности Светофоры и контроллеры Сетки оградительные Фонари сигнальные, гирлянды Цепь пластиковая
  • Столбики дорожные: гибкие, парковочные, сигнальные
    • Гибкие столбики Парковочные столбики Столбики сигнальные
  • Светофоры и контроллеры
    • Автономные светофоры Мобильные светофоры
  • Тактильная плитка
    • Тактильная плитка бетон Тактильная плитка полимерно-песчаная (композит)
  • Защита стен и углов
    • Аксессуары для угловых демпферов;Светоотражающие материалы Бамперы упорные резиновые Демпферы из вспененного полиэтилена (парковочные стоп-маты) Защита стен Защита углов Защитные ограждения паллетных стеллажей Отбойники металлические Профили для защиты кромок Профили из вспененного полиэтилена
  • Зеркала дорожные
    • Досмотровые зеркала Зеркала дорожные Зеркала сферические для помещений Зеркала сферические дорожные Зеркала сферические из нержавеющей стали Зеркала сферические промышленные Крепеж для дорожных зеркал;Знаки дорожные Крепеж для дорожных зеркал;Крепеж. Запчасти. Аксессуары
  • Знаки дорожные
    • Аксессуары Аксессуары;Крепеж. Запчасти. Аксессуары Временные знаки Дорожные знаки на флуоресцентном фоне Дорожные знаки по ГОСТу Знаки индивидуального проектирования Маски и основы дорожных знаков Светодиодные знаки
0
0

Меню

О компании
  • Готовые объекты
  • Нам доверяют
  • Сертификаты и дипломы
  • Работа у нас
  • Сотрудничество с нами
  • Новости
  • Блог idn500.ru
  • Реквизиты
  • Карта сайта
  • Политика конфиденциальности
Прайс-листы Способы оплаты Возврат средств Как сделать заказ
Монтаж Доставка
Отрасли и сферы применения нашей продукции
  • Промышленная безопасность
  • Дорожное строительство
  • Общественно-массовые мероприятия
  • Зоны проведения дорожных работ
  • Оснащение парковок
  • Оснащение ЭЗС для электромобилей
  • Оснащение автомоек и АЗС
  • Оснащение складов
  • Перегрузочное оборудование
  • Доступная среда
  • Оснащение спортивных объектов
Контакты
  • Бесплатный звонок по России

  • 8 (800) 200-15-73
  • info@idn500.ru
  • Пн-Пт: 9:00 - 18:00 (по Москве)

Помощь покупателю
  • FAQ : Часто задаваемые вопросы
  • ГОСТы - документация

Заказать

Basket 0

Корзина

Технология
Телефоны
+7 000 000-00-00
E-mail
info@idn500.ru
Адрес
150049, г. Ярославль, пр-т Толбухина, д. 17а
Режим работы
Пн - Пт: с 9:00 до 18:00
0
0
0
  • Кабинет
  • 0 Сравнение
  • 0 Избранное
  • 0 Корзина
  • Бренды
  • Акции
  • Услуги
    • Услуги
    • Изготовление резиновых изделий на заказ
      • Изготовление резиновых изделий на заказ
      • Услуги по изготовлению резиновых изделий на заказ по чертежам заказчика
    • Нанесение дорожной разметки, пиктограмм
      • Нанесение дорожной разметки, пиктограмм
      • Демаркировка дорожной разметки
      • Нанесение изображений и пиктограмм
      • Разметка дороги
      • Разметка дорожной краской
      • Разметка пешеходных переходов
      • Разметка термопластиком
      • Разметка холодным пластиком
      • Разметка эпоксидной краской
    • Разметка парковки
      • Разметка парковки
      • Демаркировка машиномест
      • Нанесение стрелок навигации
      • Нумерация машиномест
      • Покраска стен и колонн
      • Разметка машиномест для инвалидов
      • Разметка машиномест по ГОСТу
      • Разметка трафаретных изображений
    • Установка дорожных знаков
      • Установка дорожных знаков
      • Демонтаж дорожных знаков
      • Монтаж стойки дорожного знака
      • Установка дорожного знака в грунт
      • Установка дорожного знака на стойку
      • Установка знаков дорожного движения на придомовой территории
      • Установка потолочного кронштейна под знак
      • Установка стойки дорожного знака в асфальт
      • Установка стойки дорожного знака в бетон
      • Установка указателя (знака) на потолок, на стену
    • Установка защиты стен и углов
      • Установка защиты стен и углов
      • Услуги по вертикальной разметке стен и колонн
      • Установка защиты стен и углов
      • Демонтаж предохраняющих резиновых профилей
      • Монтаж демпфирующих элементов из вспененного полиэтилена
      • Сигнальная разметка колонн, маркировка, защита
    • Установка колесоотбойников
      • Установка колесоотбойников
      • Монтаж делиниаторов
      • Монтаж колесоотбойников резина/композит
      • Демонтаж делиниаторов
      • Демонтаж колесоотбойников из резины или композита
    • Установка лежачих полицейских (ИДН)
      • Установка лежачих полицейских (ИДН)
      • Монтаж ИДН
      • Демонтаж ИДН (лежачего полицейского)
      • Установка дорожного знака на стойку
    • Установка металлических колесоотбойников
      • Установка металлических колесоотбойников
      • Демонтаж металлических колесоотбойников
      • Монтаж металлических колесоотбойников
      • Установка колесоотбойников металлических на отводах
    • Установка парковочного оборудования
      • Установка парковочного оборудования
      • Демонтаж и замена парковочного оборудования
      • Монтаж парковочного оборудования
      • Разметка машиномест
      • Разметка машиномест для инвалидов
      • Установка гибких столбиков
      • Установка парковочных барьеров и блокираторов
    • Установка парковочных столбиков
      • Установка парковочных столбиков
      • Демонтаж парковочных столбиков
      • Монтаж анкерных столбиков
      • Установка бетонируемых парковочных столбиков
      • Установка гибких столбиков
      • Установка парковочных столбиков на анкерах
      • Установка съемных парковочных столбиков
    • Установка пешеходных и барьерных ограждений
      • Установка пешеходных и барьерных ограждений
      • Монтаж пешеходных и барьерных ограждений
      • Установка дорожных катафотов на барьерные ограждения
      • Установка пешеходных и барьерных ограждений в грунт
      • Демонтаж ограждений перильного типа
    • Установка сферических и обзорных зеркал
      • Установка сферических и обзорных зеркал
      • Монтаж сферических и обзорных зеркал
      • Установка стойки обзорного зеркала с бетонированием
      • Установка сферических и обзорных зеркал на стойку дорожного знака
      • Демонтаж сферических обзорных зеркал
    • Установка съездов (заездов) с бордюров
      • Установка съездов (заездов) с бордюров
      • Монтаж съездов (заездов) с бордюров
  • Компания
    • Компания
    • О компании
    • Сотрудники
    • Новости
    • Отзывы
    • Карьера
    • Лицензии
    • Документы
  • Блог
  • Информация
    • Информация
    • Реквизиты
    • Магазины
    • Проекты
      • Проекты
      • Климатическая техника
        • Климатическая техника
        • Поставка и установка бризеров в детском саду
        • Поставка и установка кондиционеров в офисном помещении
      • Мебель
        • Мебель
        • Гостиная в эко-стиле
        • Кухня в стиле модерн
      • Сантехника
        • Сантехника
        • Обустройство санузла в фирменном стиле ресторана
        • Обустройство санузла в частном коттедже
      • Оборудование
        • Оборудование
        • Подбор и поставка оборудования для промышленного предприятия
      • Освещение
        • Освещение
        • Подбор и установка освещения для салона красоты
    • Возможности
      • Возможности
      • Оформление
      • Кнопки
      • Иконки
      • Элементы
  • Контакты
+7 000 000-00-00
  • Телефоны
  • +7 000 000-00-00
  • info@idn500.ru
  • 150049, г. Ярославль, пр-т Толбухина, д. 17а
  • Пн - Пт: с 9:00 до 18:00
Главная
Каталог
«Лежачие полицейские» (ИДН) — искусственная дорожная неровность
ИДН-500
Крепеж
«Лежачие полицейские» (ИДН) — искусственная дорожная неровность

«Лежачие полицейские» (ИДН) — искусственная дорожная неровность

2
ИДН-900. Усиленное крепление
ИДН-900. Усиленное крепление
2 товара
Хиты летней одежды
Летние платья
Одежда на весну для всей семьи!
Новинки от KMI
Верхняя одежда на весну
Осенние новинки
Мужская одежда из хлопка
Большие размеры
Телевизоры с Wi-Fi
Телевизоры с поддержкой Smart TV
«Лежачие полицейские» (ИДН) — искусственная дорожная неровность
Сначала непопулярные
С начала алфавита
С конца алфавита
По возрастанию сортировки
По убыванию сортировки
Сначала непопулярные
Сначала популярные
Сначала дешевые
Сначала дорогие
Сначала недоступные
Сначала доступные
Фильтр
Сначала непопулярные
С начала алфавита
С конца алфавита
По возрастанию сортировки
По убыванию сортировки
Сначала непопулярные
Сначала популярные
Сначала дешевые
Сначала дорогие
Сначала недоступные
Сначала доступные
Цена
53
247
442
636
830
Показать
Тип
? Примечание
Предлагаем указанную область применения, но вы можете использовать товар по вашему усмотрению
Показать
Выбрано: 0 Показать
Выбрано: 0
Быстрый просмотр
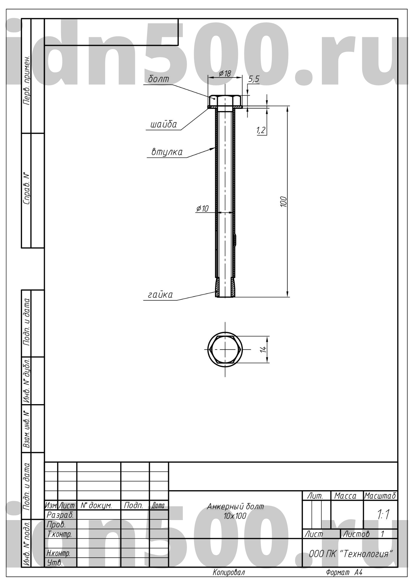
Анкерный болт 10х100мм Анкерный болт 10х100мм Анкерный болт 10х100мм Анкерный болт 10х100мм
53 ₽
+#BONUSES# на счет
Анкерный болт 10х100мм
0
0
В наличии
Тип
?
Предлагаем указанную область применения, но вы можете использовать товар по вашему усмотрению
:
Картонная коробка
Быстрый просмотр
Бур ZENTRO 4-cutting (12x100/160 мм; SDS-plus) D.BOR 4370 Бур ZENTRO 4-cutting (12x100/160 мм; SDS-plus) D.BOR 4370 Бур ZENTRO 4-cutting (12x100/160 мм; SDS-plus) D.BOR 4370 Бур ZENTRO 4-cutting (12x100/160 мм; SDS-plus) D.BOR 4370
830 ₽
+#BONUSES# на счет
Бур ZENTRO 4-cutting (12x100/160 мм; SDS-plus) D.BOR 4370
0
0
В наличии
Вес, кг
?
Значение может варьироваться от 5% до 10%.
:
0,07
Категория
  • «Лежачие полицейские» (ИДН) — искусственная дорожная неровность
    • ИДН-500
      • Крепеж
        • «Лежачие полицейские» (ИДН) — искусственная дорожная неровность
        • Крепеж
        • Оснастка
Доставка в любой регион РФ

Мы в соцсетях

РАССЫЛКА

Почему Мы?

  • Выполнили свыше 150 000 заказов
  • Более 10 лет успешной работы
  • Более 50 000 покупателей
  • Контракты с домами мод
  • Оригинальные модели
  • Круглосуточная поддержка
  • Индивидуальный подход!
  • Всегда низкие цены!
  • Самые свежие игры!

Полезная информация

О магазине

Узнайте больше о нашем магазине: кто мы, наши клиенты и почему они выбрали именно нас. Наши контакты и реквизиты.
Подробнее

Доставка

Доставим ваш заказ в любой регион России, в удобное время и день. Работаем для вас, без выходных.
Подробнее

Мы гарантируем

Мы гордимся безупречной репутацией нашего магазина. Если товар не устроит вас, вы всегда сможете вернуть деньги.
Подробнее

Как купить

Ваш первый заказ в интернет-магазине? Мы с радостью подскажем как сделать покупки в интернете простыми и удобными.
Подробнее

Всегда на связи

Связаться с нами можно любым удобным для вас способом: e-mail, телефон, социальные сети и мессенджеры.
Подробнее
Каталог
Акции
Бренды
Услуги
Блог
Условия оплаты
Условия доставки
Контакты
Магазины
Гарантия на товар
Документы
Подписаться
на новости и акции
Связаться с нами
+7 000 000-00-00
+7 000 000-00-00
E-mail
info@idn500.ru
Адрес
150049, г. Ярославль, пр-т Толбухина, д. 17а
Режим работы
Пн - Пт: с 9:00 до 18:00
info@idn500.ru
150049, г. Ярославль, пр-т Толбухина, д. 17а
Конфиденциальность
Разработано в
© 2026 Технология

На информационном ресурсе применяются рекомендательные технологии.

Все ресурсы сайта shop.idn500.ru, включая (но не ограничиваясь) текстовую, графическую, фотографическую и видео информацию, структуру, дизайн и оформление страниц, доменное имя, фирменное наименование являются объектами авторского права и прав на интеллектуальную собственность, защищены российским законодательством и международными соглашениями об охране авторских прав. Запрещается любое использование содержания страниц и контента данного сайта на других площадках без предварительного согласия правообладателя. Запрещаются любые иные действия, в результате которых у пользователей Интернета может сложиться впечатление, что представленные материалы не имеют отношения к shop.idn500.ru.

Главная Каталог 0 Корзина 0 Избранные Кабинет 0 Сравнение Акции Контакты Услуги Бренды Отзывы Компания Лицензии Документы Реквизиты Блог Обзоры